09.07.2015 Уютный дом площадью 26 квадратных метров |
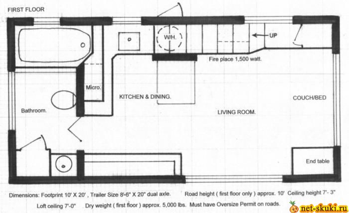
Если вы мечтаете обзавестись собственным домом, но средств не хватает, то, возможно, вам стоит задуматься о покупке такого маленького, но очень уютного домика. ![]() ![]() ![]() ![]() ![]() ![]() ![]() ![]() ![]() ![]()
|
|
|
09.07.2015 Уютный дом площадью 26 квадратных метров |
Если вы мечтаете обзавестись собственным домом, но средств не хватает, то, возможно, вам стоит задуматься о покупке такого маленького, но очень уютного домика. ![]() ![]() ![]() ![]() ![]() ![]() ![]() ![]() ![]() ![]()
|
|
|